skolehuset
Lidt af hvert
Historien
Klasseværelset
Orangeri
Moderniseringen
Før
Plantegninger
Facader
Billeder
Efter
Plantegninger
Facader
Billeder
Process
Google Map
Billeder
skolehuset
Forsiden
Lidt af hvert
Historien
Klasseværelset
Orangeri
Moderniseringen, før
Intro
Plantegninger
Facader
Billeder
Moderniseringen, efter
Intro
Plantegninger
Facader
Billeder
Process
Oversigt
Økonomi
Tak til...
Google Map
Billeder
Modernisering
Før
Efter
Process
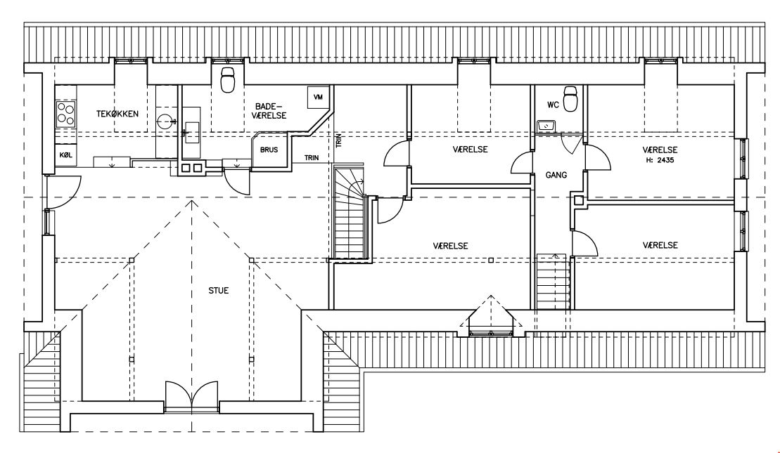
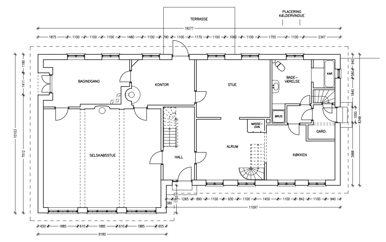
Grundplaner inden moderniseringen i 2023
Stueplan
Åbn pdf
1. sal
Åbn pdf
Grundplan
Åbn pdf
Ideer - planer - udførelse
Før
Plantegninger
Facadetegninger
Billeder
Efter
Plantegninger
Facadetegninger
Billeder
Process
Økonomi
Tak til...